首页
收藏
首 页
公司简介
产品展示
公司新闻
实力展示
客户反馈
人才招聘
联系我们
产品展示
更多
产品展示
更多
锻钢制承插焊管件系列 - 承插管箍、管帽
承插管帽
Socket Cap
承插管箍
Socket Coupling
半管接头
Boss
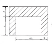
公称通径
Nominal
Diameter
承插孔
深度
Depth of Socket
承插孔
直径
Dimension of Socket
壁厚
Wall Thickness
管帽顶厚
End Wall Thickness
中间长度
The length of midst
中心至承插孔底
Center to Bottom of Socket
Cmin
Kmin
双承口
管箍
Coupling
单承口
管箍
Half-
Coupling
45°斜三通
Lateral
A
H
DN
NPS
Jmin
d
1
3000
LB
6000
LB
9000
LB
3000
LB
6000
LB
3000
LB
E
F
3000
LB
6000
LB
3000
LB
6000
LB
Sch80
Sch160
XXS
Sch80
Sch160
XXS
Sch80
Sch160
Sch80
Sch160
6
1/8
10
10.7
3.2
3.5
-
5.0
6.5
-
6
16
-
-
-
-
8
1/4
10
14.1
3.3
4.0
-
5.0
6.5
-
6
16
32
-
8
-
10
3/8
10
17.5
3.5
4.4
-
5.0
6.5
-
6
17
37
-
8
-
15
1/2
10
21.8
4.1
5.2
8.2
6.5
8.0
11.0
10
22
41
51
11
13
20
3/4
13
27.4
4.3
6.1
8.6
6.5
8.0
12.5
10
24
51
60
13
14
25
1
13
34.2
5.0
7.0
10.0
9.5
11.0
14.0
13
29
60
71
14
18
32
1.1/4
13
42.9
5.3
7.0
10.6
9.5
11.0
14.0
13
30
71
81
18
21
40
1.1/2
13
48.3
5.6
7.8
11.2
11.0
12.5
16.0
13
32
81
98
21
25
50
2
13
61.1
6.1
9.5
12.2
12.5
16.0
19.0
19
41
98
120
25
29
65
2.1/2
16
76.9(73.8)
7.7
12.5
-
16.0
19.0
-
19
43
-
-
-
-
80
3
16
89.8
8.3
13.8
-
19.0
22.0
-
19
45
-
-
-
-
100
4
19
115.5
9.4
-
-
22.0
28.5
-
19
48
-
-
-
-
备注:
承插壁厚外围平均值不低于所列值,最小值仅限于局部区域。
Note:
Average of socket wall thickness around periphery shall be no less than listed values. The minimum values are permitted in localized areas.
沪ICP备09062849号-1