首页
收藏
首 页
公司简介
产品展示
公司新闻
实力展示
客户反馈
人才招聘
联系我们
产品展示
更多
产品展示
更多
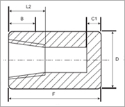
锻钢制螺纹管件系列 - 螺纹管箍、管帽
单头螺纹管箍
Threaded Half-Coupling
双头螺纹管箍
Threaded Full-Coupling
螺纹管帽
公称通径
Nominal Diameter
管箍、管帽长度
The Length of Coupling and Cap
外径
Outside Diameter
管帽顶厚
End Wall Thickness
螺纹长度
Length of Thread
E
F
D
Cmin
DN
NPS
3000LB
6000LB
3000LB
6000LB
3000LB
6000LB
3000LB
6000LB
B
L2
Sch160
XXS
Sch160
XXS
Sch160
XXS
Sch160
XXS
6
1/8
32
32
19
-
16
22
5.0
-
6.5
6.5
8
1/4
35
35
25
27
19
25
5.0
6.5
8.0
10.0
10
3/8
38
38
25
27
22
32
5.0
6.5
9.0
10.5
15
1/2
48
48
32
33
29
38
6.5
8.0
11.0
13.5
20
3/4
51
51
37
38
35
44
6.5
8.0
12.5
14.0
25
1
60
60
41
43
44
57
9.5
11.0
14.5
17.5
32
1.1/4
67
67
44
46
57
64
9.5
11.0
17.0
18.0
40
1.1/2
76
76
44
48
64
76
11.0
12.5
18.0
18.5
50
2
86
86
48
51
76
92
12.5
16.0
19.0
19.0
65
2.1/2
92
92
60
64
92
108
16.0
19.0
23.5
29.0
80
3
108
108
65
68
108
127
19.0
22.0
26.0
30.5
100
4
121
121
68
75
140
159
22.0
28.5
27.5
33.0
沪ICP备09062849号